On this page, you will find a floorplan for the duplex as well as photos of the exterior, views, and even visitors to the yard! Use the links at left to view photos of each unit.
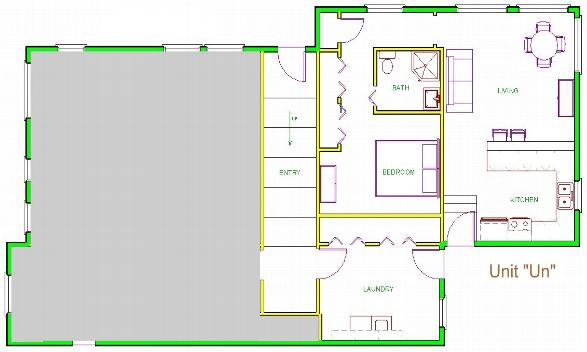
the floorplan showing the layout of the units in the duplex...
a view of the local port where the boats are lifted out of the water each day and stored on top of the dock...
a view from the Port Orford Heads looking north to Cape Blanco...
a sunset seen from a vantage point just down the road...

visitors seen out of the window...
